Our Products

  • Standard Grated Gutter System
  • Standard Gutter System
  • Air Exchange System design w/ cantilever deck
  • Fitness Style Overflow System
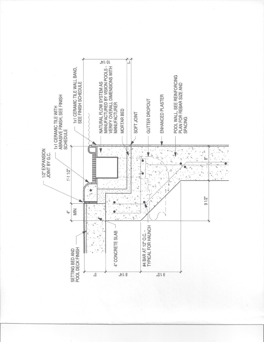
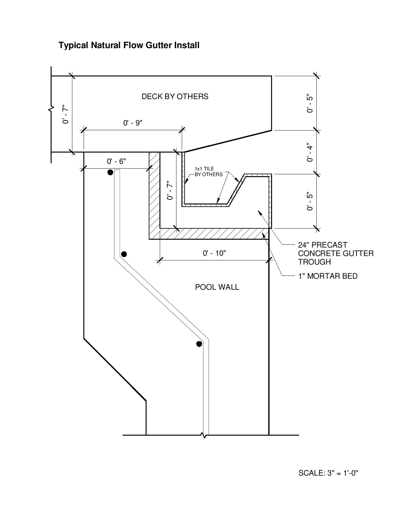
  • Natural Flow Install - Click Here
  • Natural Flow Renovation - Click Here

Worry free is where we come in

Theere are few things we know about swimming pools. They should be beautiful, funtional, and above all worry free.